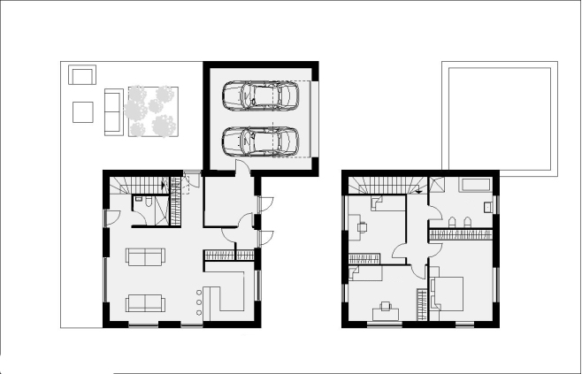
modelo PISUERGA

Vivienda de 164 m2

Vivienda unifamiliar distribuida en 2 plantas. Planta Baja con Salón/comedor, cocina, baño y despacho. La planta primera consta de 3 dormitorios y baño

Modelo PISUERGA
ficha_4 Meses_modelo B.pdf
Documento Adobe Acrobat [1.9 MB]
Versión para imprimir | Mapa del sitio
© Casasindustriales.com

Página web creada con IONOS Mi Web.